Tu Oportunidad de Estrenar: 3 Ambientes al Pozo 13°A

direccion Alsina 750, Banfield

volver Volver al listado
left
right
left
right

Venta

USD 182.942

  • Oportunidad
  • Tipo de propiedad Departamentos
  • ambientes 3 Ambientes
  • toilet 2 baños
  • cama 1 Dormitorio
  • cama 1 Dormitorio en suite
  • Anticipo y cuotas Anticipo y cuotas
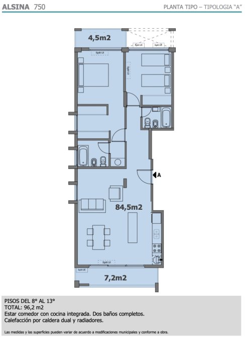
  • Superficie cubierta Sup. cubierta 85m2
  • Superficie total Sup. total 97m2

Acerca de la propiedad

Ubicado en el corazón de Banfield, a solo dos cuadras de la estación de tren y de las principales avenidas, ALSINA 750 combina diseño, confort y una ubicación estratégica.

El edificio se levanta sobre un terreno de más de 17 metros de frente, con retiro y semiperímetro libre, ofreciendo una arquitectura moderna y luminosa.

Departamento 3 ambientes con estar comedor, cocina integradas, calefacción por caldera dual y radiadores, balcón al frente y contrafrente.

Amenities de primer nivel:
 Salón de usos múltiples (SUM)
 Gimnasio
 Piscina con deck y solarium
 Vestuarios
 Cocheras en planta baja y subsuelo

Planta baja:
Imponente hall de ingreso en doble altura

FINANCIACIÓN HASTA 30 CUOTAS!

Comodidades

  • Zona Centrica Zona céntrica
  • balcon Con balcon
Ver más

Ubicación

Servicio brindado por

buscadorprop

Todos los derechos registrados:

grupotodo
whatsapp Whatsapp email Contactar telefono Llamar
Chatea con nosotros whatsapp