EXCELENTE LOCAL SOBRE AVENIDA ALSINA EN POZO!

direccion Alsina 750, Banfield

volver Volver al listado
left
right
left
right

Venta

USD 400.000

  • Oportunidad
  • Tipo de propiedad Locales
  • Anticipo y cuotas Anticipo y cuotas
  • Superficie cubierta Sup. cubierta 166m2
  • Superficie total Sup. total 166m2
  • Pisos 14 pisos
  • Antiguedad Antigüedad En construcción
  • Estado Estado Excelente

Acerca de la propiedad

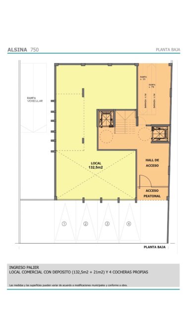
Local comercial en ALSINA 750 – Banfield Centro - Planta Baja, 166 m²
Se presenta este local comercial de 166 m² ubicado en la planta baja del edificio ALSINA 750, en pleno corazón de Banfield, a solo dos cuadras de la estación y con acceso directo a la principal avenida.
El local contará con una excelente visibilidad y distribución, ideal para distintos rubros comerciales, y forma parte de un proyecto moderno con amenities de primer nivel, que incluyen SUM, gimnasio, piscina con deck y solárium, vestuarios y cocheras.
Financiación disponible: anticipo del 40% y saldo en hasta 30 cuotas mensuales.
Una oportunidad única para establecer tu negocio en un entorno estratégico, con alto potencial de valorización.

Comodidades

Ver más

Ubicación

Servicio brindado por

buscadorprop

Todos los derechos registrados:

grupotodo
whatsapp Whatsapp email Contactar telefono Llamar
Chatea con nosotros whatsapp