HERMOSO Y CENTRICO DOS AMBIENTES AL FRENTE! 6°A

direccion Alsina 750, Banfield

volver Volver al listado
left
right
left
right

Venta

USD 89.882

  • Oportunidad
  • Tipo de propiedad Departamentos
  • ambientes 2 Ambientes
  • toilet 1 baño
  • cama 1 Dormitorio
  • Anticipo y cuotas Anticipo y cuotas
  • Superficie cubierta Sup. cubierta 47m2
  • Superficie total Sup. total 47m2
  • Pisos 14 pisos
  • Antiguedad Antigüedad En construcción
  • Estado Estado Excelente

Acerca de la propiedad

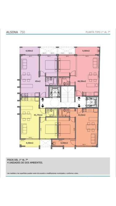
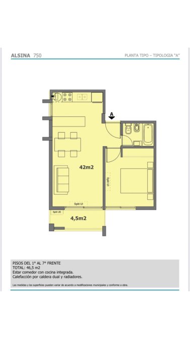
Departamento de 2 ambientes en ALSINA 750 – Banfield Centro 6°A
En un edificio de diseño moderno y con amenities de primer nivel, se presenta esta unidad de 2 ambientes pensada para el confort diario.
Dispone de caldera dual individual, calefacción por radiadores, cocina integrada y un amplio balcón propio, que aporta luminosidad, aireación y una expansión ideal para disfrutar al aire libre.
El proyecto ofrece además SUM, gimnasio, piscina con deck y solárium, vestuarios y cocheras, todo en una ubicación estratégica: a solo dos cuadras de la estación de Banfield y con rápido acceso a las principales avenidas.
Financiación disponible: anticipo del 40% y saldo en hasta 30 cuotas mensuales.
Una propuesta ideal para vivir con estilo o invertir en un desarrollo con gran potencial de valorización.

Comodidades

  • Patio Con patio
  • Pileta Con pileta
  • Jardin Con jardin
  • Parrilla Con parrilla
  • balcon Con balcon
  • Calefaccion Con calefacción
  • Solarium Con solarium
  • Ascensor Con ascensor
  • Termotanque Con termotanque
Ver más

Ubicación

Servicio brindado por

buscadorprop

Todos los derechos registrados:

grupotodo
whatsapp Whatsapp email Contactar telefono Llamar
Chatea con nosotros whatsapp