PROYECTO INMOBILIARIO INNOVADOR EN ZONA CÉNTRICA!

direccion Alsina 750, Banfield

volver Volver al listado
left
right
left
right>

Estado

En construcción

Amenities

  • Ascensor Ascensor
  • Caldera Caldera
  • Caldera Individual Caldera Individual
  • Calefacción por radiadores Calefacción por radiadores
  • Cochera Fija Cochera Fija
  • Cochera subterránea Cochera subterránea
  • Deck Deck
  • En construcción En construcción
  • Frente a carretera Frente a carretera
  • Gimnasio Gimnasio
  • Piscina Piscina
  • Potencial alto para alquilar Potencial alto para alquilar
  • Preinstalación de A/A Preinstalación de A/A
  • SUM SUM
  • Solarium Solarium

Acerca del emprendimiento

ALSINA 750 – Banfield Centro

Ubicado en el corazón de Banfield, a solo dos cuadras de la estación de tren y de las principales avenidas, ALSINA 750 combina diseño, confort y una ubicación estratégica.

El edificio se levanta sobre un terreno de más de 17 metros de frente, con retiro y semiperímetro libre, ofreciendo una arquitectura moderna y luminosa.

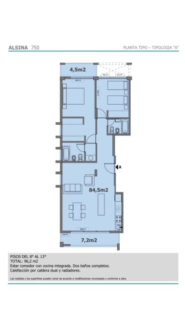
Unidades disponibles:
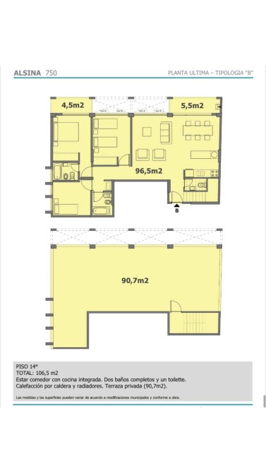
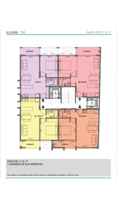
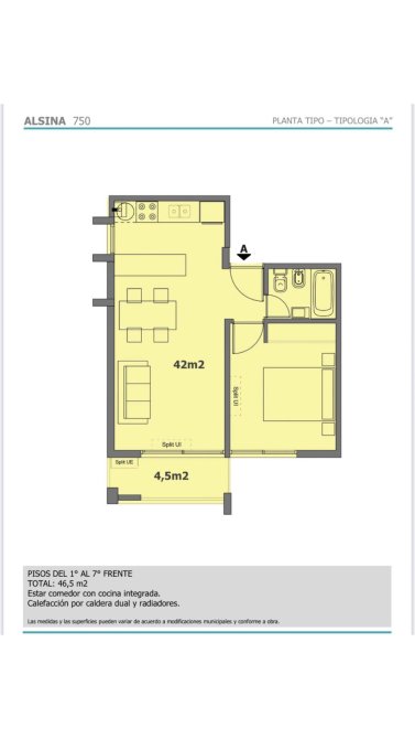
  •  Departamentos de 2, 3 y 4 ambientes de calidad superior.
  •  Amplias tipologías con estar comedor, cocinas integradas o semi integradas, calefacción por caldera dual y radiadores.
  •  Pisos altos con terrazas privadas y vistas abiertas.

Amenities de primer nivel:
  •  Salón de usos múltiples (SUM)
  •  Gimnasio
  •  Piscina con deck y solarium
  •  Vestuarios
  •  Cocheras en planta baja y subsuelo

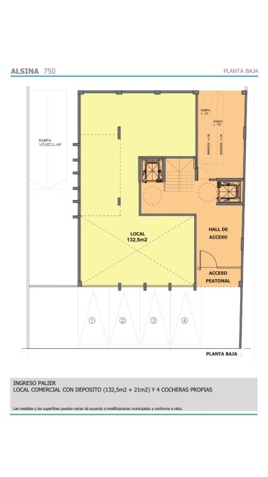
Planta baja:
  • Imponente hall de ingreso en doble altura
  • Local comercial con gran presencia

ALSINA 750 es la oportunidad ideal para quienes buscan vivir con estilo en una ubicación privilegiada, o para quienes desean invertir en un proyecto sólido y con gran proyección de valorización.

Ubicación

Servicio brindado por

buscadorprop

Todos los derechos registrados:

grupotodo
whatsapp Whatsapp email Contactar telefono Llamar
Chatea con nosotros whatsapp